RETOUR VERS LE PROGRAMME : ICÔNE -
AUBERVILLIERS
(93)
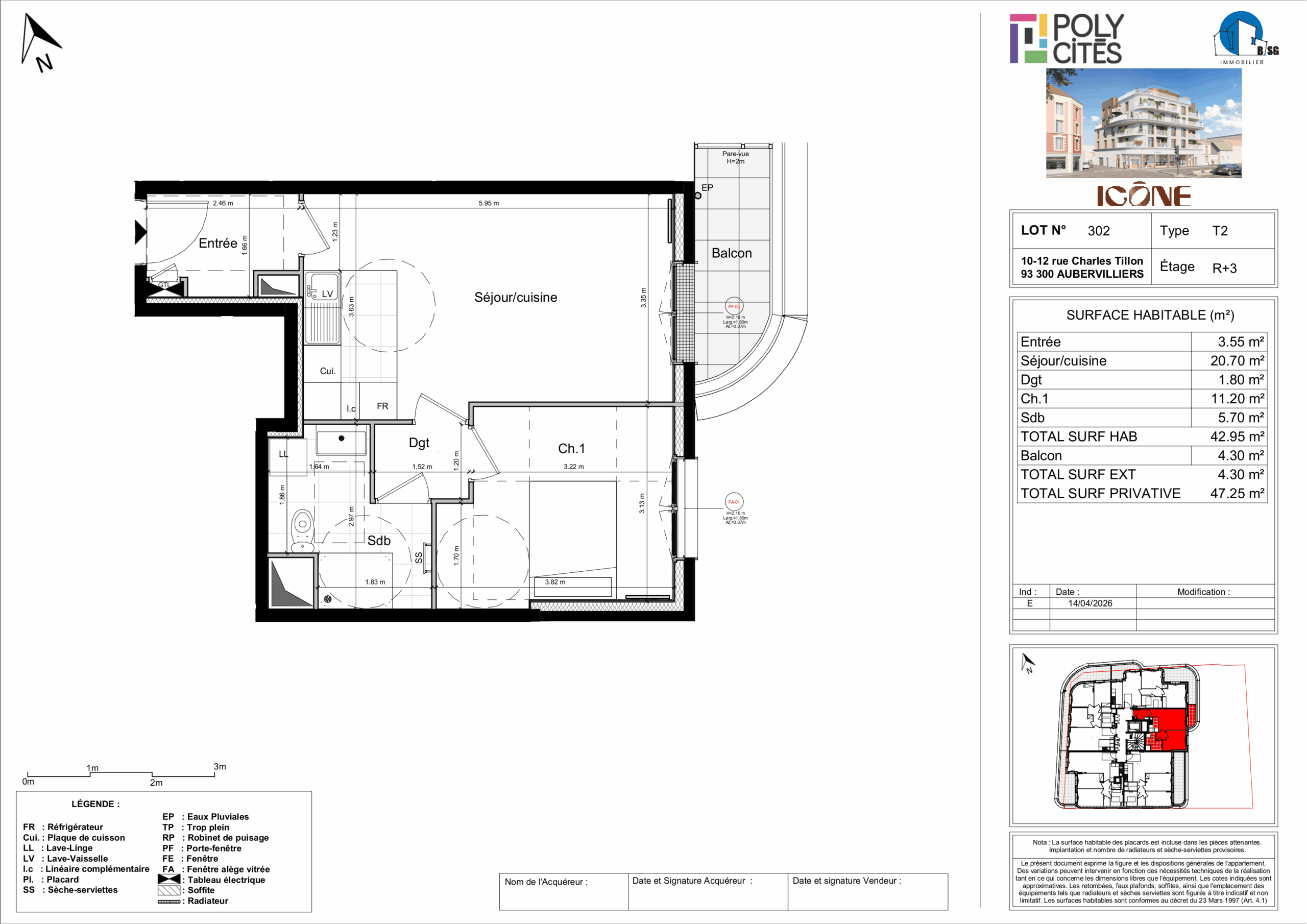
LOT N° 302
Appartement
de
2 pièces
42.95

m2

(TVA à 20%)

PLAN - Cliquez sur le Plan pour l'ouvrir dans une fenêtre

DÉTAIL DU LOT

Lot N° : 302
Type : Appartement
2 pièces
Étage : R+3
SURFACE :
42.95
m2
Exposition : Est
BALCON :
5.20
m2

PLUS D'INFORMATIONS

Pour en savoir plus nous vous invitons à reseigner les informations suivantes :

ESPACE DE VENTE

PRENDRE RENDEZ-VOUS

MAISON 302