RETOUR VERS LE PROGRAMME : ICÔNE -
AUBERVILLIERS
(93)
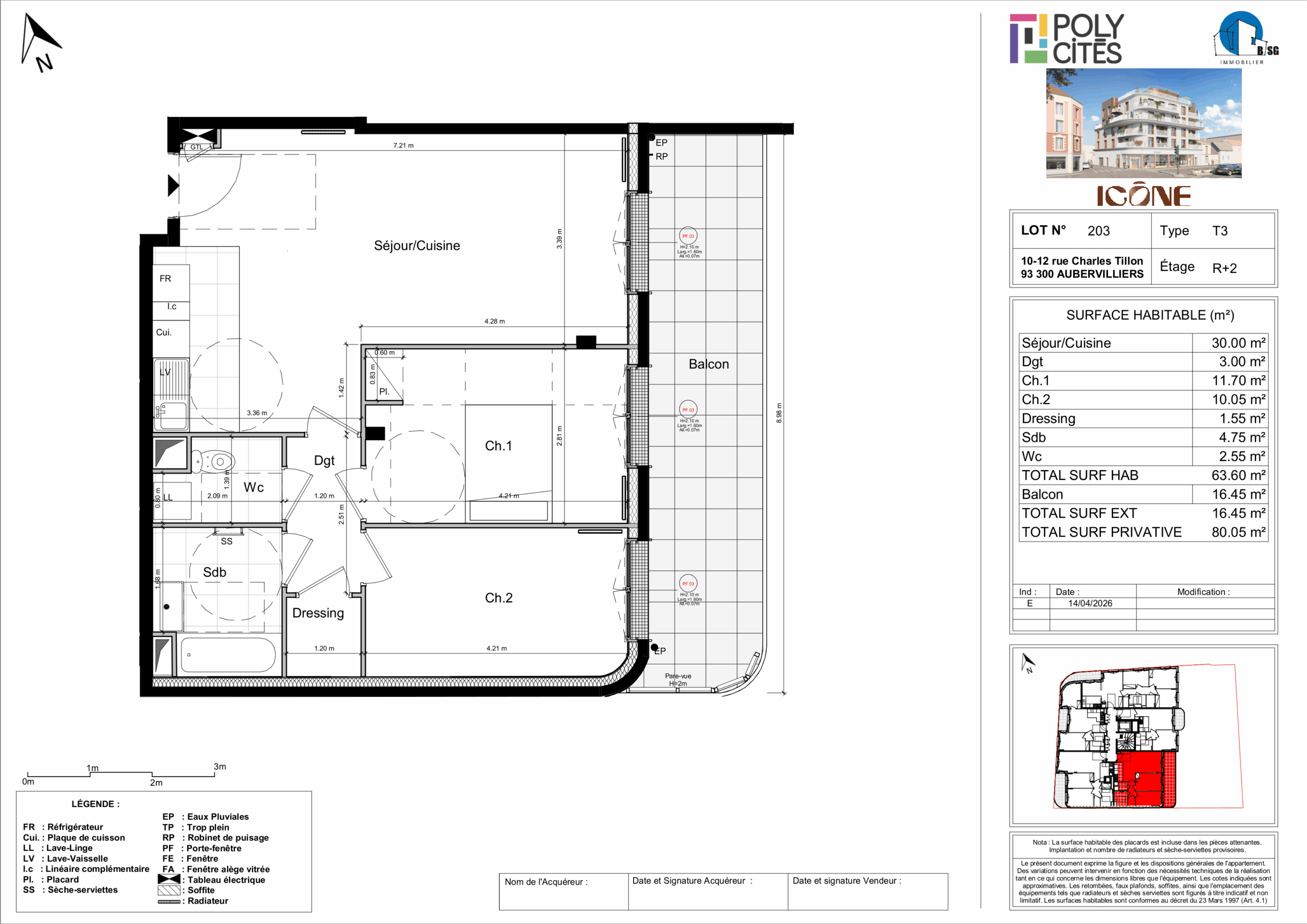
LOT N° 203
Appartement
de
3 pièces
63.60

m2

(TVA à 20%)

PLAN - Cliquez sur le Plan pour l'ouvrir dans une fenêtre

DÉTAIL DU LOT

Lot N° : 203
Type : Appartement
3 pièces
Étage : R+2
SURFACE :
63.60
m2
Exposition : Est
Parking : 1
BALCON :
16.45
m2

PLUS D'INFORMATIONS

Pour en savoir plus nous vous invitons à reseigner les informations suivantes :

ESPACE DE VENTE

PRENDRE RENDEZ-VOUS

MAISON 203