RETOUR VERS LE PROGRAMME : ICÔNE -
AUBERVILLIERS
(93)
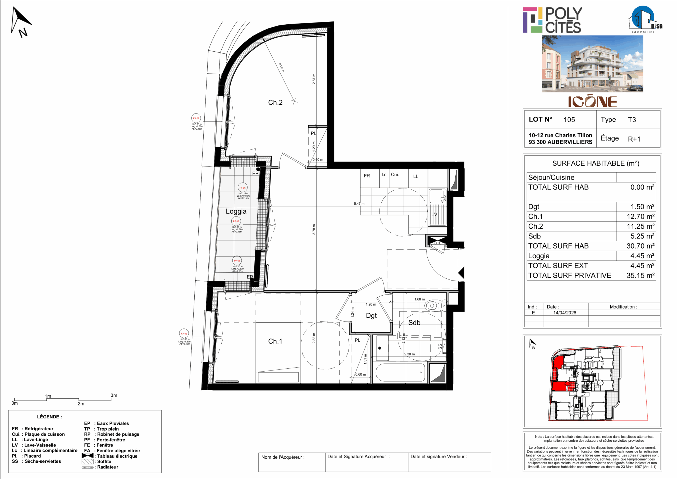
LOT N° 105
Appartement
de
3 pièces
52.00

m2

(TVA à 20%)

PLAN - Cliquez sur le Plan pour l'ouvrir dans une fenêtre

DÉTAIL DU LOT

Lot N° : 105
Type : Appartement
3 pièces
Étage : R+1
SURFACE :
52.00
m2
Exposition : Ouest
LOGGIA :
4.90
m2

PLUS D'INFORMATIONS

Pour en savoir plus nous vous invitons à reseigner les informations suivantes :

ESPACE DE VENTE

PRENDRE RENDEZ-VOUS

MAISON 105