RETOUR VERS LE PROGRAMME : ICÔNE -
AUBERVILLIERS
(93)
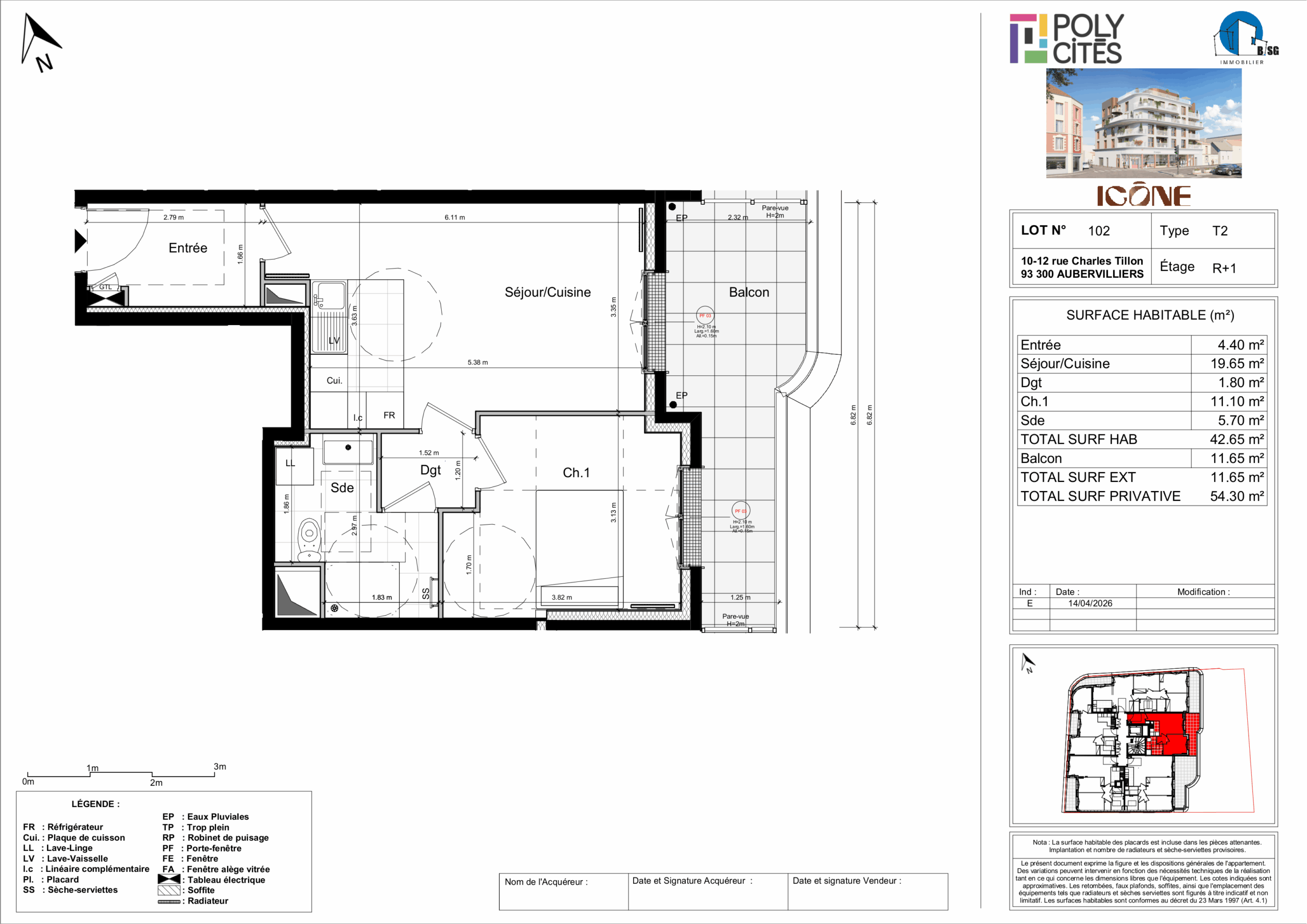
LOT N° 102
Appartement
de
2 pièces
42.65

m2

(TVA à 20%)

PLAN - Cliquez sur le Plan pour l'ouvrir dans une fenêtre

DÉTAIL DU LOT

Lot N° : 102
Type : Appartement
2 pièces
Étage : R+1
SURFACE :
42.65
m2
Exposition : Est
BALCON :
12.70
m2

PLUS D'INFORMATIONS

Pour en savoir plus nous vous invitons à reseigner les informations suivantes :

ESPACE DE VENTE

PRENDRE RENDEZ-VOUS

MAISON 102